8-22方移動壓縮垃圾站(垃圾箱),8方移動壓縮垃圾箱,10方移動壓縮垃圾箱,12方移動壓縮垃圾站
湖北程力集團廠家直銷:8-22方可移動壓縮垃圾箱報價,勾臂拉臂垃圾車圖片視頻,想了解更多掛桶對接環衛車請致電:13886889494
現階段城鎮垃圾收運體系簡析
由于我國尚處在城市化進程的過程中,城鎮鄉基礎建設水平各不相同,所以存在多種垃圾收集方式。
城市垃圾的收集方式主要有:手推車零散垃圾收集、后裝式垃圾壓縮車定點收集、垃圾桶收集、擺臂式垃圾車收集等方式。
垃圾收集的特點是:垃圾收集點的垃圾大多數露天存放,因垃圾收集容器密封性能不好存在垃圾污水外溢,臭氣沖天,且定點收集垃圾的后裝式垃圾壓縮車工作時噪音大、耗能高,對周圍環境和附近居民生活影響很大。
城區內的主要垃圾收運點存在場地小、道路狹窄、臨近居民區等實際制約條件。
根據以上特點,我們為用戶提供可以改善環境、提高效率、節省費用、降低勞動強度的垃圾收集、壓縮處理、轉運的一體化解決方案--—移動智能垃圾壓縮站+多功能拉臂車方案。

移動式壓縮垃圾設備簡介
我公司生產的智能移動壓縮垃圾站設備構成:由翻轉機構,壓縮機頭,控制系統,集裝箱,后門(卸料口)構成。
適用性高:該設備占地面積小,僅需鋪設簡單的地面鋼板導軌,無需埋件,就可快速安裝到位使用,適用于垃圾桶,手推車,微型收集車的進料,壓實密度0.65-0.85T/立方


主要部件介紹:
CLW-JGLT生活垃圾壓縮機整機結構由壓縮腔、壓縮頭、料斗舉升裝置及連體式料斗、壓縮垃圾存儲部分、后門及密封系統、液壓系統、控制系統組成。
①壓縮腔和壓縮頭
CLW-JGLT的壓縮頭、壓縮腔及垃圾存儲箱等關鍵部位均使用高強度、耐磨、耐腐蝕鋼板制造,使整個設備的綜合使用壽命得到了極大提高,并且在各個旋轉鉸接部位全部采用自潤滑軸承或關節軸承,極大提高了轉動部位的壽命。
壓縮頭由耐腐蝕高強度合金鋼板焊接而成,采用無導軌設計,四周間隙小,可有效防止垃圾滯留在機體內。壓縮腔內設置固定抓鉤,可防止壓擠進去的垃圾回彈,壓縮推板采用雙曲線外形設計,可使壓縮比達到大,投料口大,投裝垃圾更方便。壓縮頭的所有部件均進行了嚴格的防腐、防銹、耐磨處理。
②料斗及舉升機構
CLW-JGLT料斗及舉升裝置,是通過舉升機構將特制的料斗與箱體連為一體的系統總成。需要裝入垃圾時將料斗放下,倒入垃圾,然后通過舉升機構將料斗舉起,把垃圾倒入壓縮腔。運輸時料斗直接蓋在壓縮腔上方,與箱體一起轉運。這種結構使用方便,用戶的使用現場僅需380V外接電源即可開始使用,充分提高了設備的轉場使用效率。該設備的料斗舉升機構是在充分研究了歐洲發達國家以及國內典型產品的基礎上,汲取各家之長,獨立設計開發的,擁有完全的自主知識產權,具有重量輕,強度高,舉升靈活、可靠,耐久性好的突出特點。而我們配備的料斗不論用戶是使用板車、電動車還是小型自卸車和拖拉機,均能進行配套使用。
↓ ↓

③存儲箱體
箱體采用高強度鋼材焊接而成,焊接工藝高,成型符合大眾審美,壓縮腔兩側帶污水排放裝置。
④后門總成及鎖緊、密封系統
后門總成采用整板制作,造型圓滑美觀。后門鎖緊采用液壓油缸鎖緊機構,從拉臂車取動力,自動操作,操作簡單可靠,且后門開啟角度達100度,使垃圾傾倒更徹底干凈。整體式雙唇結構密封膠條,具有優異的密封性能,能有效防止污水的滲漏和氣味的散發,即便在無法排污的情況下也能保證設備在壓縮及轉運過程中不會出現污水泄露的現象。
⑤液壓系統
液壓系統主要部件選用全球各大知名品牌的產品,均為原裝進口件,保證液壓系統的可靠性。該設備具備歐洲同步領先技術,所以對噪聲的控制更加的嚴格,對主要的噪音來源都進行了降噪措施,比如在結構件的接觸部位均加裝了緩沖裝置; 液壓系統采用抽屜式安裝,外形美觀,節約空間,同時便于液壓系統檢修。
設備只需要一臺5.5KW電機即可實現全部的工作動作,平均每處理1噸垃圾耗電量僅為0.7度左右,能源消耗十分有限。
⑥電氣控制系統
電器控制系統采用微處理器(PLC)系統,即可實現自動記憶程序控制的連續自動操作,又可使用手工點動操作。各機構運轉通過預設程序相互關聯、互鎖,有效確保設備運行的安全性。電氣系統配有15KAV的穩壓電源,并且接地保護。系統具有垃圾裝載量顯示和滿載預警及指示功能。
*系統自帶故障診斷系統,自診斷包括油溫高溫警報,相位錯誤警報,馬達過載報警和機械卡死故障報警。
所有的指示信息、預警、報警以及箱體內垃圾壓縮的填充情況均可在控制面板上液晶顯示器里清晰顯示。
系統具有良好的安全防護性能,配置了緊急停止控制器和緊急回推控制器,保證設備在使用時一旦出現問題可以立即停機;并使壓縮頭不論在任何工位均可退回至初始工作位置
整個系統電器元件均采用帶有防水功能的器件,同時在安裝過程中使用防護罩和密封膠條進行密封防護。
外接電源接口采用進口帶相位轉換功能的元件,可以根據使用現場情況快速調節相序,確保設備在任何情況下均可正常使用。

↑ ↑
將收集到的垃圾傾倒在料斗上,通過翻轉機構升降,實現垃圾填裝至壓縮腔中
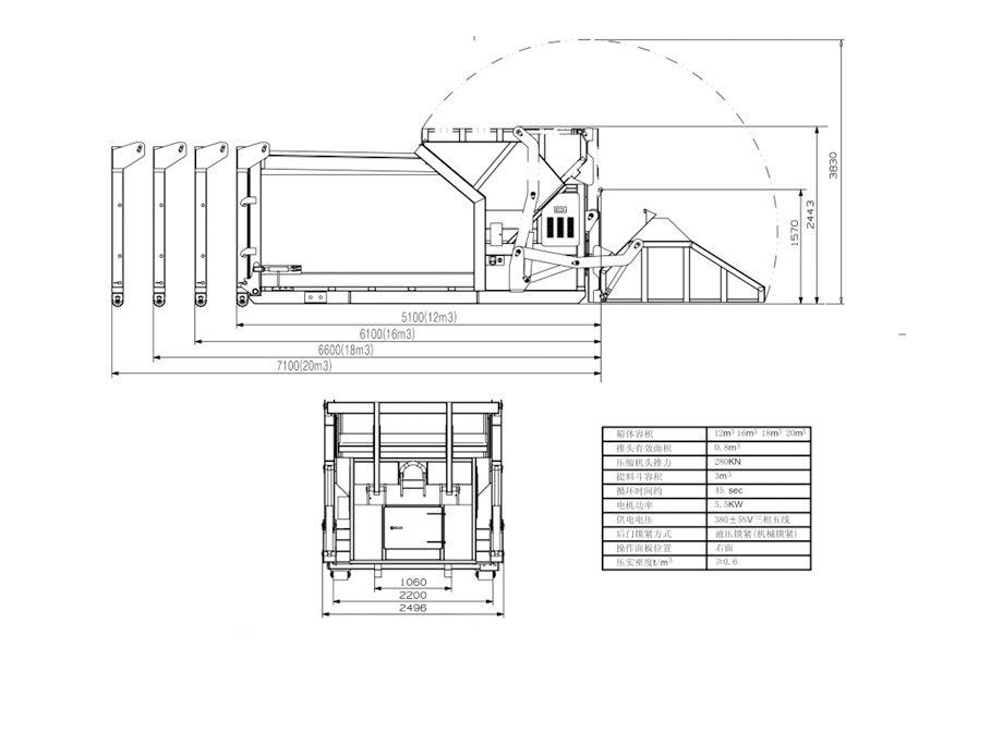
不同容積的移動壓縮垃圾箱,因其長度不同,所配套的勾臂車輛箱長和承載動力有所不同,
多種移動壓縮垃圾站搭配車輛方案,可詳詢13886889494
↓ ↓



聯系人:
手機:
Q Q:
微信:
地址:湖北省隨州市南郊區平原崗程力工業園




153-3411-2555